Обяви За нас Контакти
Продава КЪЩА
област София, гр. Божурище
225 000 €
440 061.75 лв.

(882 €, 1 725.04 лв./m2)
Цената е с включено ДДС
История на цената
Публикувана в 16:48 на 13 февруари, 2026 год.
Обявата е посетена 237 пъти.
Площ:
255 m2
Двор:
850 m2
Етаж:
0 от 2
Строителство:
Тухла, 2022 г.

Описание на имота:


БИЛДИНГ БОКС предлага за продажба просторна къща в с. Гурмазово, община Божурище.
Тишината и гледките допринасят за една истинска идилия за живот на село, отдалечено само на 10 мин от гр. София.

Мястото
Къщата е разположена в тихата част на с. Гурмазово, под хълм, който служи като естествена защита от северни и северозападни ветрове, с югозападно изложение и прекрасна гледка към 'Витоша' и 'Люлин' планина.

Простор
Къщата е двуетажна с РЗП - 255м2 с двор от 850м2, където има място за гаражи/паркоместа, басейн и барбекю.
В двора има изграден сондаж, като по този начин са решени питейните и поливни нужди. В съседните имоти се живее целогодишно.

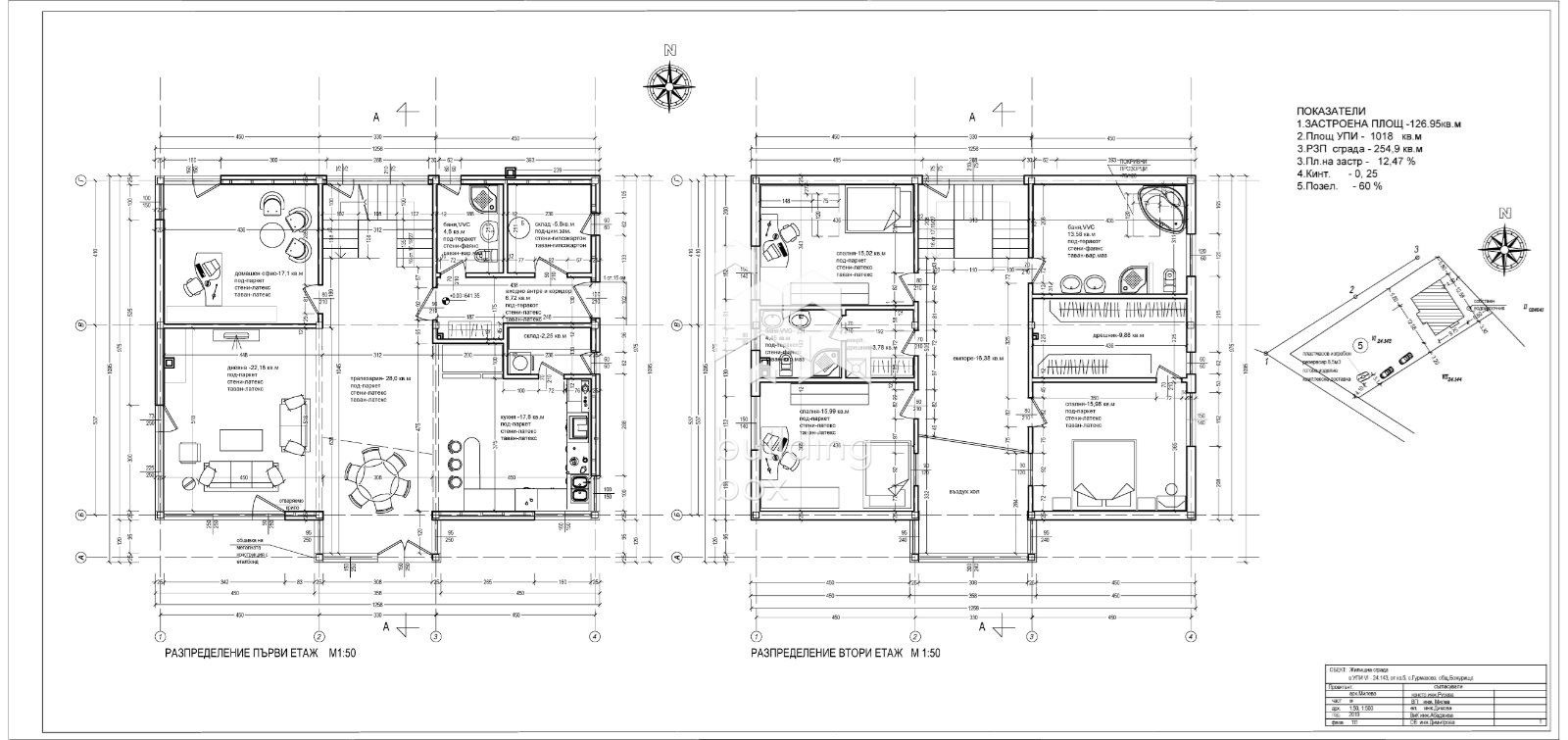
Къщата е със следното разпределение:
1. На първия етаж - Просторна всекидневна, трапезария и кухня с кухненски склад, кабинет, склад, сервизно помещение баня с тоалетна и втора тоалетна;
2. На втория етаж - 3 големи спални, един дрешник, баня с тоалетна и огромна баня с тоалетна.

Технология и материали
Къщата е изградена по най-съвременни практики със смесена конструкция, бетонов фундамент с корава стоманена конструкция. Така се постига по-бърз монтаж и намаляване тежестта на къщата. Стоманата притежава добра издръжливост на усукване и обтягане, което я прави по-добрият избор по отношение на сеизмични влияния. Външните стени са 20см., с 10 см. топлоизолация, покрива е скатен с 15см. топлоизолация.
Проектът на къщата е заимстван от немски проектантски екип и разпределението е много функционално в типичен немски стил видно от схемите на снимките.

План и довършителни дейности
Къщата е построена през 2022г., като към момента е с Акт 14 и чл. 181. Подготвена е документацията за получаване на Акт 15+16, очаква се до м. март 2026г.

Имотът се предлага за продажба, като на този етап могат да се правят промени за постигане на необходимият комфорт и функционалност.

Този имот е за хора, ориентирани към спокойствието, ценящи хубавите гледки, простора и радостта от допира с природата.

Цената е съобразена с оставащите довършителни работи по къщата и двора. При сериозен интерес за придобиване на имота ще бъдат разкрити останалите предимства на място по време на огледа както и може да се даде оферта за довършителните дейности.

БИЛДИНГ БОКС предоставя безплатна консултация и съдействие при финансиране на избрания от Вас имот.
Оферта 28243
Особености
Тухла
За контакт:
0877734412
Брокер:
БИЛДИНГ БОКС София
0877734412
Офис: гр. София, ул. Цар Симеон 154
Още оферти от брокера: Продава | Дава под наем | Купува | Наема
Агенция:
БИЛДИНГ БОКС
0877734412
БИЛДИНГ БОКС logo
Медал за прослужено време
В imot.bg от 2013 г.
buildingbox.imot.bg
Адрес:
област София, гр. София, София ЕИК207674103
ИЗПРАТИ ЗАПИТВАНЕ
ИЗПРАТИ ЗАПИТВАНЕТО

Продава КЪЩА
област София, гр. Божурище
Обява: 1j177099412745709

225 000 €
440 061.75 лв.
История на цената
(882 €, 1 725.04 лв./m2)

Цената е с включено ДДС
ЗАПАЗИ ОБЯВАТА

Местоположение: област София, гр. Божурище