Обяви За нас Контакти
Продава КЪЩА
град София, м-т Камбаните
640 000 €
1 251 731.20 лв.

(3 282 €, 6 419.03 лв./m2)
Цената е с включено ДДС
История на цената
Коригирана в 10:39 на 27 октомври, 2025 год.
Обявата е посетена 1801 пъти.
Площ:
195 m2
Двор:
317 m2
Етаж:
0 от 3
Строителство:
Тухла, 2023 г.

Описание на имота:


ДИРЕКТНО ОТ ИНВЕСТИТОР!
АКТ 15

Билдинг Бокс има удоволствието да Ви представи една от шестте къщи в комплекс 'ОСТА Хоум' - дом заобиколен от природа, спокойствие и простор.

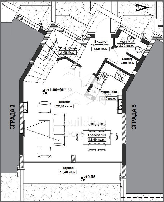
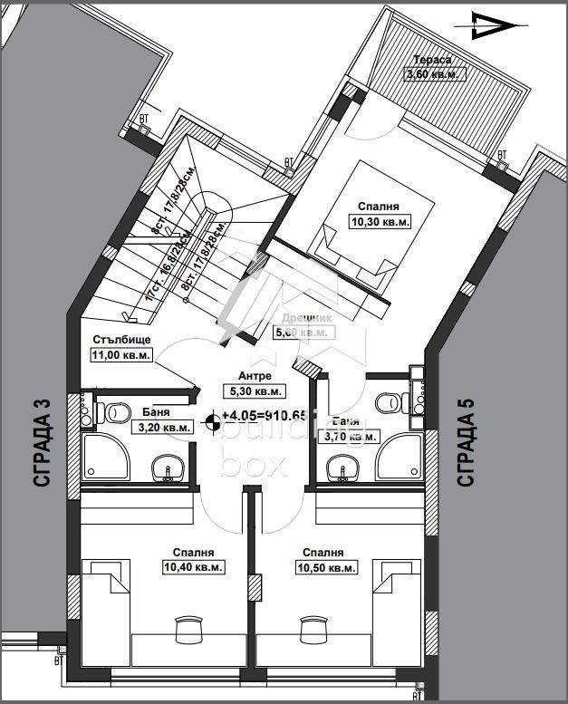
Къщата е със самостоятелен двор от 317 кв.м и с площ от 190,90 кв.м. Първото ниво се състои от: антре, склад, голяма дневна с трапезария и кухненски бокс, тоалетна и прекрасна веранда. Второто ниво: три самостоятелни спални, към една от които има дрешник и тераса, и две бани с тоалетни. На третото ниво: open space помещение с баня и тоалетна, което е подходящо за офис или четвърта спалня. Пред къщата има обособени две паркоместа.

Комплекс 'ОСТА Хоум' се състои от общо шест къщи, като всички са с по три етажа. Основното изложение на къщите е изток-запад.

В момента къщите са на етап пред Акт 15, като за изпълнението им са използвани висок клас материали. Във всяка от къщите ще има изцяло подово отопление, а спрямо предпочитанията на клиента, ще може да се отоплява на ток.

Акт 16 се очаква в средата на 2025г.

В комплекса ще бъде монтирана пречиствателна станция.

Билдинг Бокс предоставя безплатна консултация и кредитно съдействие при финансиране на избрания от Вас имот.
Оферта 14914
Виж всички обяви в buildingbox.bazar.bg или тук
Особености
Тухла
В строеж
В затворен комплекс
С паркинг
Саниран
За контакт:
0879900994
Брокер:
БИЛДИНГ БОКС София Юг
0879 900 994
Офис: гр. София
Още оферти от брокера: Продава | Дава под наем | Купува | Наема
Агенция:
БИЛДИНГ БОКС
0877734412
БИЛДИНГ БОКС logo
Медал за прослужено време
В imot.bg от 2013 г.
buildingbox.imot.bg
Адрес:
област София, гр. София, София ЕИК207674103
ИЗПРАТИ ЗАПИТВАНЕ
ИЗПРАТИ ЗАПИТВАНЕТО

Продава КЪЩА
град София, м-т Камбаните
Обява: 1j174419890206411

640 000 €
1 251 731.20 лв.
История на цената
(3 282 €, 6 419.03 лв./m2)

Цената е с включено ДДС
ЗАПАЗИ ОБЯВАТА

Местоположение: град София, м-т Камбаните

Допълнителни данни за имотите в района и сравнение с други райони: Търсене в АРХИВ 2013 - 2025 г.











Добави/редактирай
вид имот и район
*Средните цени са определени чрез медиана стойност.