Обяви За нас Контакти
Продава МЕЗОНЕТ
град София, Слатина
318 000 €
621 953.94 лв.

(2 585 €, 5 055.82 лв./m2)
Цената е с включено ДДС
История на цената
Публикувана в 15:10 на 8 декември, 2025 год.
Обявата е посетена 139 пъти.
Площ:
123 m2
Етаж:
6-ти от 6
ТEЦ:
ДА
Строителство:
Тухла, 2028 г.

Описание на имота:


БИЛДИНГ БОКС представя сграда, която се отличава с просторни жилища с перфектно разпределение и високо качество на строителството, изпълнено от опитни професионалисти, които осигуряват сигурност и комфорт за бъдещите обитатели.

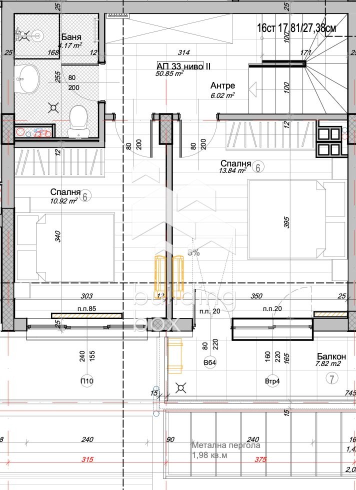
Имотът е мезонет и е със застроена площ от 107.52 кв.м.
Има следното разпределение:
1. Първо ниво - Входно антре, дневна с трапезария, баня с тоалетна, склад и тераса;
2. Второ ниво - Две спални, баня с тоалетна и тераса.

Изложението на имота е изцяло южно. Намира се на 5-ти и 6-ти етаж от общо 6. Отоплението е на ТЕЦ - ще има изводи за климатици с мултисплит, както и предвидено място за бойлер.

Жилищният комплекс е изпъкващ сред сградите в района с иновативен дизайн, модерна фасада и перфектни архитектурни решения. Ще предостави комфорт за бъдещите си собственици и всички необходими удобства за днешния градски живот. При изграждането на проекта ще бъдат използвани висококачествени материали и технологии.

Сградата е на втора плоча и ще бъде завършена м. Октомври 2028г.

Местоположението на сградата е изключително удобно в непосредствена близост до спирки на градски транспорт, магазини и супермаркети, училища и детски градини. Районът е добре устроен с множество зелени междублокови пространства и поддържана среда за живеене. Локацията осигурява бърз достъп до основни булеварди като Шипченски проход и Цариградско шосе , което позволява лесно и удобно придвижване до всички части на града.

БИЛДИНГ БОКС предлага безплатна консултация и кредитно съдействие за финансиране на покупката на Вашия имот.
Оферта 27568
Особености
Тухла
За контакт:
0877734412
Брокер:
БИЛДИНГ БОКС София
0877734412
Офис: гр. София, ул. Цар Симеон 154
Още оферти от брокера: Продава | Дава под наем | Купува | Наема
Агенция:
БИЛДИНГ БОКС
0877734412
БИЛДИНГ БОКС logo
Медал за прослужено време
В imot.bg от 2013 г.
buildingbox.imot.bg
Адрес:
област София, гр. София, София ЕИК207674103
ИЗПРАТИ ЗАПИТВАНЕ
ИЗПРАТИ ЗАПИТВАНЕТО

Продава МЕЗОНЕТ
град София, Слатина
Обява: 1f176519942001068

318 000 €
621 953.94 лв.
История на цената
(2 585 €, 5 055.82 лв./m2)

Цената е с включено ДДС
ЗАПАЗИ ОБЯВАТА

Местоположение: град София, Слатина

Допълнителни данни за имотите в района и сравнение с други райони

Покажи

Период

* Средните цени са определени чрез медианна стойност