Обяви За нас Контакти
Продава МНОГОСТАЕН
град София, Белите брези
675 000 €
1 320 185.25 лв.

(2 848 €, 5 570.20 лв./m2)
Цената е с включено ДДС
История на цената
Коригирана в 13:19 на 10 ноември, 2025 год.
Обявата е посетена 288 пъти.
Площ:
237 m2
Етаж:
7-ми от 8
ТEЦ:
ДА
Строителство:
Тухла, 2012 г.

Описание на имота:


БИЛДИНГ БОКС предлага за продажба апартамент в един от най-предпочитаните комуникативни и същевременно зелени квартали на София - Белите Брези!

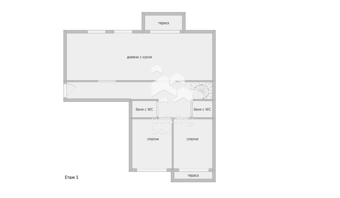
Имотът е на две нива: първото е със застроена площ от 119,80 кв.м. и се състои от антре, просторна дневна с кухненски бокс и тераса, 2 спални, 2 бани и втора тераса, второто ниво е със застроена площ 88,10 кв м. като се състои от предверие, 2 спални всяка със отделна баня, тераса с прекрасна гледка към Витоша. Квадратурата на двете нива не включва и допълнителни 56,6 кв.м с височина под 1,5 м. Имотът е завършен с настилки, бани и парапет на стълбите, с чисто нова дограма SALAMANDER.
Изложението е югозапад и изток.
Отоплението е на ТЕЦ.
Просторен и изключително функционален, подготвен за най-приятната част от довършителните работи, а именно обзавеждането.

Намира се на седми и осми (последен) етаж в тухлена сграда с разрешение за ползване от 2012г. Общите части са в много добро състояние.
Сградата има асансьор.
Към апартамента може да се закупи и гараж в сутеренното ниво.

Района е предпочитан, заради уредеността си от гледна точка на транспорт, училища и детски градини, магазини, заведения за хранене, пазар и големи търговски вериги.

БИЛДИНГ БОКС предоставя безплатна консултация и съдействие при финансиране на избрания от Вас имот.

Оферта 25017
Виж всички обяви в buildingbox.bazar.bg или тук
Особености
Тухла
За контакт:
0879900994
Брокер:
БИЛДИНГ БОКС София Юг
0879 900 994
Офис: гр. София
Още оферти от брокера: Продава | Дава под наем | Купува | Наема
Агенция:
БИЛДИНГ БОКС
0877734412
БИЛДИНГ БОКС logo
Медал за прослужено време
В imot.bg от 2013 г.
buildingbox.imot.bg
Адрес:
област София, гр. София, София ЕИК207674103
ИЗПРАТИ ЗАПИТВАНЕ
ИЗПРАТИ ЗАПИТВАНЕТО

Продава МНОГОСТАЕН
град София, Белите брези
Обява: 1e175923543761439

675 000 €
1 320 185.25 лв.
История на цената
(2 848 €, 5 570.20 лв./m2)

Цената е с включено ДДС
ЗАПАЗИ ОБЯВАТА

Местоположение: град София, Белите брези

Допълнителни данни за имотите в района и сравнение с други райони: Търсене в АРХИВ 2013 - 2025 г.











Добави/редактирай
вид имот и район
*Средните цени са определени чрез медиана стойност.