Обяви За нас Контакти
Продава 3-СТАЕН
град София, Сухата река
313 000 €
612 174.79 лв.

(2 073 €, 4 054.44 лв./m2)
Цената е с включено ДДС
История на цената
Публикувана в 17:16 на 21 април, 2026 год.
Обявата е посетена 15 пъти.
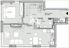
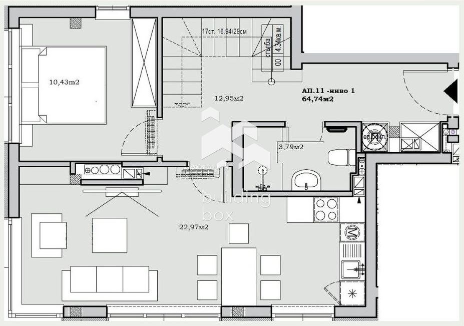
Площ:
151 m2
Строителство:
Тухла, Ще бъде въведен в експлоатация 2027 г.

Описание на имота:


Просторен тристаен мезонет с тераса и спокойна среда идеален семеен дом.

БИЛДИНГ БОКС предлага за продажба светъл мезонет в нова бутикова сграда в кв. 'Сухата река'.

Жилището е на две нива, с просторна дневна, две спални и голяма тераса, която създава приятно място за отдих и семейни моменти.
Сградата е с вътрешен озеленен двор без автомобили, контролиран достъп и спокойна среда, подходяща за семейства с деца.
Локацията е изключително удобна в близост до магазини, градски транспорт и бъдеща метростанция, с бърз достъп до центъра.
Това е дом, който съчетава пространство, сигурност и комфорт в динамичната градска среда.

Предимства на имота и сградата:
1. Панорамни гледки към река Слатинска;
2. Голяма тераса;
3. Бутикова сграда с малък брой апартаменти;
4. Озеленен вътрешен двор без автомобили;
5. Подземен паркинг и контролиран достъп;
6. Видеонаблюдение за сигурност;
7. Висок енергиен клас A ;
8. Фасадно интегрирани слънчеви панели;
9. Без такса поддръжка

Локация и транспорт:
Имотът се намира в изключително комуникативен район с бърз достъп до ключови точки на града:
- 8 минути пеша до супермаркети Фантастико и T Market ;
- 7 минути пеша до автобуси 79 и 90 и трамвай 22;
- 8 минути пеша до новоизграждаща се метростанция;
- В близост до автобус 78 и тролеи 1 и 3

Локацията съчетава спокойствие и отлична градска свързаност.

Имотът е отличен избор, както за семейно жилище, така и за инвестиция, благодарение на функционалността, локацията и качеството на строителството.

БИЛДИНГ БОКС осигурява безплатна консултация и съдействие при кредитиране за покупка на имот.
Оферта 31778
Особености
Тухла
За контакт:
0877734412
Брокер:
БИЛДИНГ БОКС София
0877734412
Офис: гр. София, ул. Цар Симеон 154
Още оферти от брокера: Продава | Дава под наем | Купува | Наема
Агенция:
БИЛДИНГ БОКС
0877734412
БИЛДИНГ БОКС logo
Медал за прослужено време
В imot.bg от 2013 г.
buildingbox.imot.bg
Адрес:
област София, гр. София, София ЕИК207674103
ИЗПРАТИ ЗАПИТВАНЕ
ИЗПРАТИ ЗАПИТВАНЕТО

Продава 3-СТАЕН
град София, Сухата река
Обява: 1c177678097905022

313 000 €
612 174.79 лв.
История на цената
(2 073 €, 4 054.44 лв./m2)

Цената е с включено ДДС
ЗАПАЗИ ОБЯВАТА

Местоположение: град София, Сухата река

Допълнителни данни за имотите в района и сравнение с други райони

Покажи

Период

и 4 месеца

* Средните цени са определени чрез медианна стойност