Обяви За нас Контакти
Продава 3-СТАЕН
град София, Илиянци
180 000 €
352 049.40 лв.

(1 698 €, 3 321.00 лв./m2)
Цената е с включено ДДС
История на цената
Публикувана в 10:21 на 23 март, 2026 год.
Обявата е посетена 120 пъти.
Площ:
106 m2
Етаж:
2-ри от 3
Строителство:
Тухла, Ще бъде въведен в експлоатация 2026 г.

Описание на имота:


Едно райско кътче на минути от град София.

БИЛДИНГ БОКС предлага за продажба тристаен апартамент със собствен двор, намиращ се в новостроящ се комплекс в с. Мировяне. В селото има парк, супермаркет, аптека и заведения.
Перфектното съотношение между градска среда и спокоен живот извън града!
Комплексът се намира точно на входа на селото, което позволява бърз достъп до софийския околовръстен път, магистралата и центъра на гр. София.
В непосредствена близост има спирка на градски транспорт, който ходи до метростанция 'Обеля' и 'Хан Кубрат'.

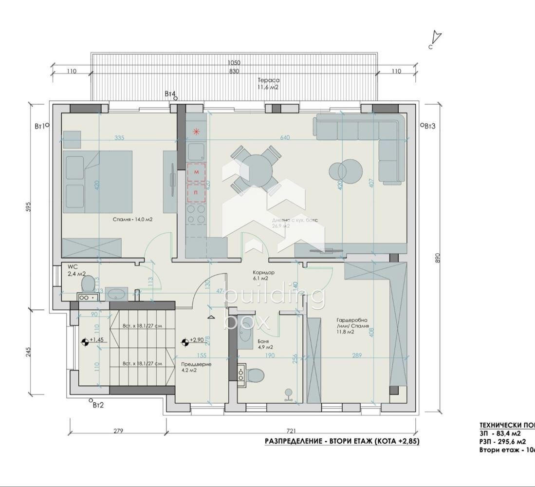
Апартаментът е с югоизточно изложение, със застроена площ от 106 кв.м. и има следното разпределение: антре, баня с тоалетна, отделна тоалетна, две спални, хол с кухненски бокс, тераса.

Предимства:
1. Подово отопление в цената - Оотоплението е на ток, като към всеки апартамент има и изградено подово отопление и подготовка за термопомпа;
2. Паркомясто в цената - Ккъм всеки апартамент ще има обособено паркомясто в двора на съответния апартамент;
3. Собствен двор - Ввсеки апартамент в сградата, без значение от етажа, ще разполага със собствен обособен двор!

Строителството се изпълнява с тухли Wienerberger, PVC 7 камерна дограма на Trocal, покрива е направен със системата на Tondach, 10см каменна вата на стените и 15см вата на покрива

Проектът е на етап взет Акт15 и ще бъде завършен до месец март.

Схемата на плащане е:
- 10% се заплащат при предварителен договор;
- 40% се заплащат при Акт-образец 14 и чл. 181;
- 40% се заплащат при Акт-образец 15;
- 10% се заплащат при Акт-образец 16

БИЛДИНГ БОКС предоставя безплатна консултация и съдействие при финансиране на избрания от Вас имот.
Оферта 19155
Особености
Тухла
Контрол на достъпа
За контакт:
0877734412
Брокер:
БИЛДИНГ БОКС София
0877734412
Офис: гр. София, ул. Цар Симеон 154
Още оферти от брокера: Продава | Дава под наем | Купува | Наема
Агенция:
БИЛДИНГ БОКС
0877734412
БИЛДИНГ БОКС logo
Медал за прослужено време
В imot.bg от 2013 г.
buildingbox.imot.bg
Адрес:
област София, гр. София, София ЕИК207674103
ИЗПРАТИ ЗАПИТВАНЕ
ИЗПРАТИ ЗАПИТВАНЕТО

Продава 3-СТАЕН
град София, Илиянци
Обява: 1c177425409469477

180 000 €
352 049.40 лв.
История на цената
(1 698 €, 3 321.00 лв./m2)

Цената е с включено ДДС
ЗАПАЗИ ОБЯВАТА

Местоположение: град София, Илиянци

Допълнителни данни за имотите в района и сравнение с други райони

Покажи

Период

и 3 месеца

* Средните цени са определени чрез медианна стойност