Обяви За нас Контакти
Продава 3-СТАЕН
град София, Княжево
240 000 €
469 399.20 лв.

(2 500 €, 4 889.58 лв./m2)
Цената е с включено ДДС
История на цената
Публикувана в 14:28 на 25 февруари, 2026 год.
Обявата е посетена 35 пъти.
Площ:
96 m2
Етаж:
1-ви от 5
Строителство:
Тухла, 2024 г.

Описание на имота:


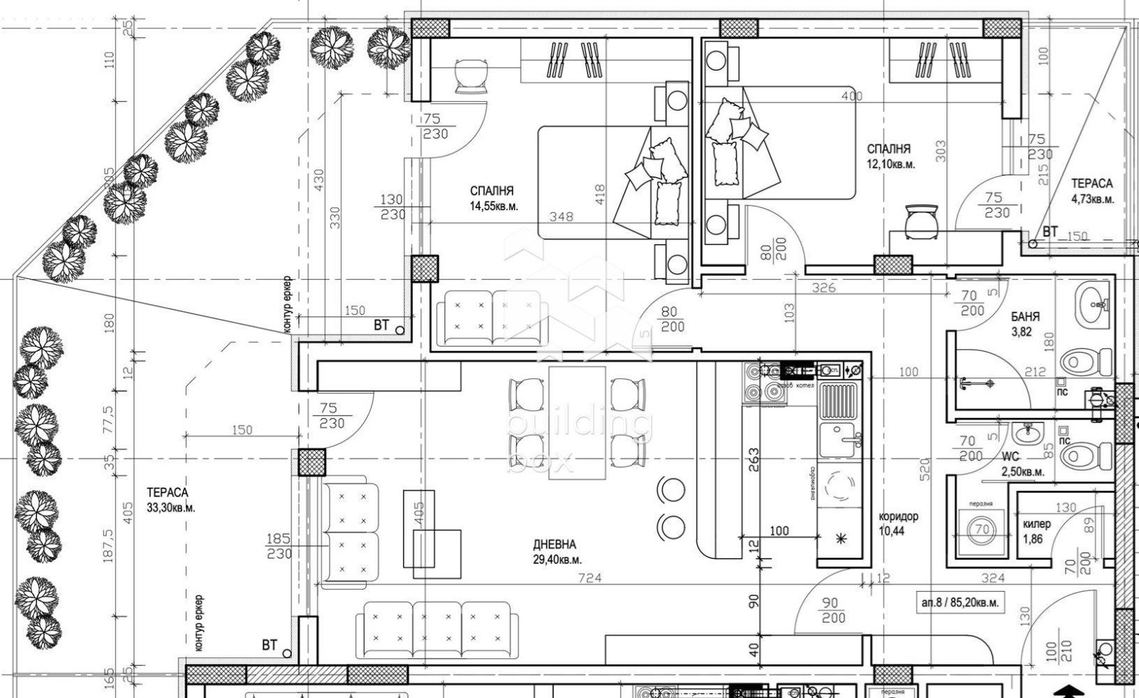
БИЛДИНГ БОКС представя изключителен тристаен апартамент с просторна собствена тераса, разположен на първи етаж от пет във малка тухлена сграда с акт 16

Апартаментът е идеален избор за млади семейства, собственици на домашни любимци или хора, които ценят спокойствието и уюта на собствена външна площ. Терасата с площ от 33 кв. предлага отлична атмосфера и обособяване на кът за отдих или детска зона.

Застроената площ н аапартамента е 85,2 кв.м., като в тази площ не влиза просторната тераса от 33 кв.м. Разпределението на апартамента е следното: входно антре, дневна с кухненски бокс, две спални, 2 бани с тоалетна, две тераси. Имотът е на шпакловка и замазка. Отоплението ще е решено с термопомпа и подово отопление и е включено в цената.

Районът е изключително предпочитан от семейства с деца, заради спокойствие, чистия въздух, близостта до планината и ниското застрояване и отстояния от съседните сгради. В непосредствена близост се намира и най-новата детска градина в квартала, няколко големи хранителни магазина, спирки на градски транспорт и много удобен излаз на централни пътни артерии.

Билдинг Бокс предоставя безплатна консултация и съдействие при финансиране на избрания от Вас имот.
Оферта: 27778
Особености
Тухла
За контакт:
0879900994
Брокер:
БИЛДИНГ БОКС София Юг
0879 900 994
Офис: гр. София
Още оферти от брокера: Продава | Дава под наем | Купува | Наема
Агенция:
БИЛДИНГ БОКС
0877734412
БИЛДИНГ БОКС logo
Медал за прослужено време
В imot.bg от 2013 г.
buildingbox.imot.bg
Адрес:
област София, гр. София, София ЕИК207674103
ИЗПРАТИ ЗАПИТВАНЕ
ИЗПРАТИ ЗАПИТВАНЕТО

Продава 3-СТАЕН
град София, Княжево
Обява: 1c177202252370219

240 000 €
469 399.20 лв.
История на цената
(2 500 €, 4 889.58 лв./m2)

Цената е с включено ДДС
ЗАПАЗИ ОБЯВАТА

Местоположение: град София, Княжево

Допълнителни данни за имотите в района и сравнение с други райони

Покажи

Период

и 2 месеца

* Средните цени са определени чрез медианна стойност