Обяви За нас Контакти
Продава 3-СТАЕН
град София, Център
273 972 €
535 842.66 лв.

(2 468 €, 4 826.99 лв./m2)
Цената е с включено ДДС
История на цената
Публикувана в 10:40 на 5 февруари, 2026 год.
Обявата е посетена 67 пъти.
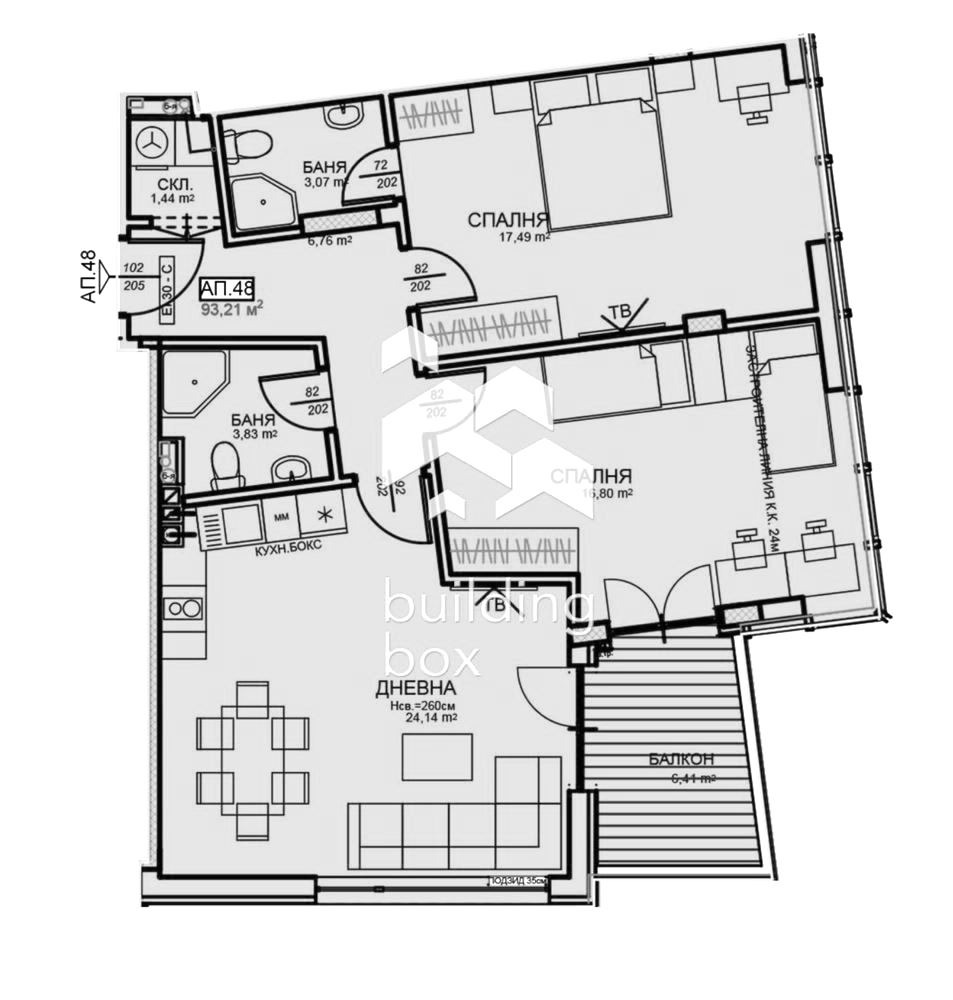
Площ:
111 m2
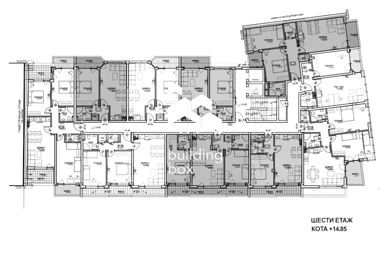
Етаж:
6-ти от 8
ТEЦ:
ДА
Строителство:
Тухла, 2026 г.

Описание на имота:


БИЛДИНГ БОКС предлага за продажба тристаен апартамент в нова модерна сграда в Централна София

ЛОКАЦИЯ: бул. 'Сливница', ул. 'Братя Миладинови', бул. 'Христо Ботев' в сърцето на града, в близост до 'Лъвов мост', Централна гара, 'Женския пазар', парк Св. Никола , училища, детски градини, магазини и II МБАЛ.

ПАРАМЕТРИ:
- Обща площ: 110.92 кв.м.;
- Нетна площ: 93.21 кв.м.;
- Общи части: 17.71 кв.м.
- Изложение: Изток / Североизток;
- Възможност за покупка на подземно или надземно паркомясто на цена между 26 000 - 52 000 евро

Предимства на имота:
1. Ново строителство от доказан строител;
2. Избор от апартаменти с 1, 2 или 3 спални;
3. Луксозни общи части облицовка от естествен камък;
4. Модерна архитектура, съобразена с нуждите на активния градски човек;
5. Отопление от ТЕЦ;
6. 6-камерна немска PVC дограма с троен стъклопакет;
7. Външна блиндирана врата;
8. Апартаментите се издават по БДС: шпакловка и замазка

Строителни характеристики:
- Конструкция: Монолитна стоманобетонна, безгредова, с колони и шайби;
- Фундиране: фундаментна плоча;
- Етажност: 8 етажа;
- Брой апартаменти: 61;
- Материали: енергоефективни тухли и топлоизолация по всички ограждащи елементи

Инсталации:
- Отопление и вентилация: ТЕЦ, радиатори; вентилация за санитарни възли и подземни гаражи;
- Електроинсталации: силова, слаботокова, мълниезащита, пожароизвестяване;
- ВиК: централно топла вода, вътрешно и външно отводняване на тераси и покриви

Срокове за строителство:
- Старт: 30.09.2023 г.;
- Акт 14: Март 2025 г.;
- Очакван Акт 15: Декември 2025 г.;
- Очакван Акт 16 (разрешение за ползване): Септември 2026 г.

БИЛДИНГ БОКС предоставя безплатна консултация и съдействие при финансиране на избрания от Вас имот.
Оферта 22524
Особености
Тухла
Контрол на достъпа
За контакт:
0877734412
Брокер:
БИЛДИНГ БОКС София
0877734412
Офис: гр. София, ул. Цар Симеон 154
Още оферти от брокера: Продава | Дава под наем | Купува | Наема
Агенция:
БИЛДИНГ БОКС
0877734412
БИЛДИНГ БОКС logo
Медал за прослужено време
В imot.bg от 2013 г.
buildingbox.imot.bg
Адрес:
област София, гр. София, София ЕИК207674103
ИЗПРАТИ ЗАПИТВАНЕ
ИЗПРАТИ ЗАПИТВАНЕТО

Продава 3-СТАЕН
град София, Център
Обява: 1c177028083276335

273 972 €
535 842.66 лв.
История на цената
(2 468 €, 4 826.99 лв./m2)

Цената е с включено ДДС
ЗАПАЗИ ОБЯВАТА

Местоположение: град София, Център

Допълнителни данни за имотите в района и сравнение с други райони

Покажи

Период

и 2 месеца

* Средните цени са определени чрез медианна стойност