Обяви За нас Контакти
Продава 3-СТАЕН
град Варна, Изгрев
148 000 €
289 462.84 лв.

(1 721 €, 3 365.98 лв./m2)
Цената е с включено ДДС
История на цената
Публикувана в 10:18 на 25 ноември, 2025 год.
Обявата е посетена 12 пъти.
Площ:
86 m2
Етаж:
2-ри от 10
Строителство:
Тухла, 2028 г.

Описание на имота:


Описание
БИЛДИНГ БОКС предлага за продажба ТРИСТАЕН апартамент в новострояща се сграда в кв. 'Изгрев'
ЛОКАЦИЯ: Сградата се намира кв. 'Изгрев'. В близост са големи хипермаркети, медицински центрове, училища, детски градини, поликлиники. Лесен достъп до градски транспорт.
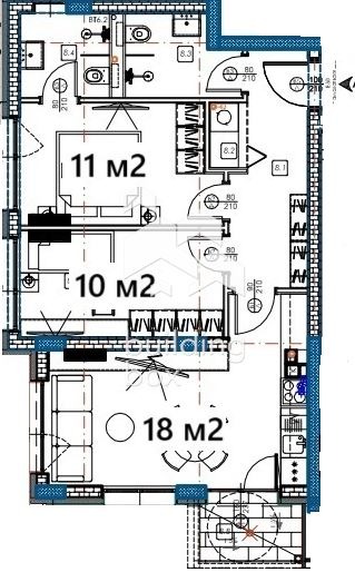
РАЗПРЕДЕЛЕНИЕ: Всекидневна с кухненски бокс - 18 кв.м., две спални - 11 кв.м. и 10 кв.м., 2 бани с тоалетна, складово помещение и входно антре.
ЕТАЖ: Етаж 2 от общо 10
ИЗЛОЖЕНИЕ: Югозапад
ОТОПЛЕНИЕ: Електричество.
ПАРКИРАНЕ: Към имота има възможност да се закупят открити и закрити паркоместа.
СТРОИТЕЛСТВО: Тухла.

Билдинг Бокс предоставя безплатна консултация и съдействие при финансиране на избрания от Вас имот.
Оферта 22745
Виж всички обяви в buildingbox.bazar.bg или тук
Особености
Тухла
За контакт:
0879900993
Брокер:
БИЛДИНГ БОКС Варна
0879900993
Още оферти от брокера: Продава | Дава под наем | Купува | Наема
Агенция:
БИЛДИНГ БОКС
0877734412
БИЛДИНГ БОКС logo
Медал за прослужено време
В imot.bg от 2013 г.
buildingbox.imot.bg
Адрес:
област София, гр. София, София ЕИК207674103
ИЗПРАТИ ЗАПИТВАНЕ
ИЗПРАТИ ЗАПИТВАНЕТО

Продава 3-СТАЕН
град Варна, Изгрев
Обява: 1c176405872752522

148 000 €
289 462.84 лв.
История на цената
(1 721 €, 3 365.98 лв./m2)

Цената е с включено ДДС
ЗАПАЗИ ОБЯВАТА

Местоположение: град Варна, Изгрев