Обяви За нас Контакти
Продава 3-СТАЕН
град София, Малинова долина
209 758 €
410 250.99 лв.

(1 907 €, 3 729.77 лв./m2)
Цената е с включено ДДС
История на цената
Коригирана в 12:10 на 10 декември, 2025 год.
Обявата е посетена 295 пъти.
Площ:
110 m2
Етаж:
2-ри от 4
Газ:
ДА
Строителство:
Тухла, 2027 г.

Описание на имота:


Билдинг Бокс представя жилищен комплекс от затворен тип в Малинова долина, който съчетава модерен дизайн, простор и зеленина създаден с мисъл за Вашето удобство и качество на живот!

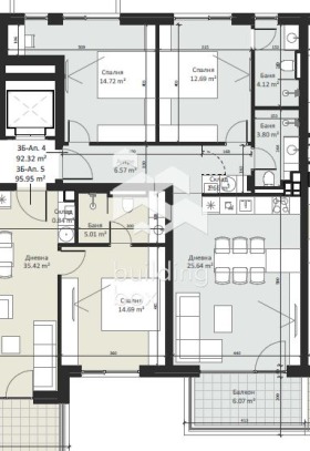
Жилището се намира на втори от общо четири етажа, с чиста площ от 92.32 кв.м.
Имотът е тристаен и се състои от антре, дневна с кухненски бокс, две самостоятелни спални, 2 бани с тоалетни, и тераса с площ от 6.07 кв.м.
Отоплението е предвидено чрез ГАЗ. Изложението е Север-Юг.

Това не е просто имот това е дом, който вдъхновява! Независимо дали търсите перфектното място за живот или печеливша инвестиция, тук ще откриете идеалния баланс между природа, комфорт и удобство.

Предимства:
- Само по 3 апартамента на етаж, осигуряващи спокойствие, правилни форми и просторни квадратури.
- Изложението е Север-Юг гарантирана естествена светлина и уют през целия ден.
- Широки зелени площи за разходки, игри и релакс сред природата.
- Избор между дворове и големи тераси за семейно уединение или панорамни гледки към Витоша и София.
- Луксозни общи части стил и престиж на всяка стъпка.

Разнообразие от жилища 2-стайни, 3-стайни, 4-стайни и 5-стайни апартаменти.

Възможност за покупка на подземни паркоместа и гаражи.

В момента е на етап изкопни дейности и ще бъде завършена 2027г.

Локация:
Само на минути от Ring Mall
Бърз достъп до Околовръстен път винаги близо до всичко важно.
В близост до бъдеща метростанция!

Билдинг Бокс предоставя безплатна консултация и съдействие при финансиране на избрания от Вас имот.
Оферта 19331
Особености
Тухла
За контакт:
0879900994
Брокер:
БИЛДИНГ БОКС София Юг
0879 900 994
Офис: гр. София
Още оферти от брокера: Продава | Дава под наем | Купува | Наема
Агенция:
БИЛДИНГ БОКС
0877734412
БИЛДИНГ БОКС logo
Медал за прослужено време
В imot.bg от 2013 г.
buildingbox.imot.bg
Адрес:
област София, гр. София, София ЕИК207674103
ИЗПРАТИ ЗАПИТВАНЕ
ИЗПРАТИ ЗАПИТВАНЕТО

Продава 3-СТАЕН
град София, Малинова долина
Обява: 1c176233852844563

209 758 €
410 250.99 лв.
История на цената
(1 907 €, 3 729.77 лв./m2)

Цената е с включено ДДС
ЗАПАЗИ ОБЯВАТА

Местоположение: град София, Малинова долина

Допълнителни данни за имотите в района и сравнение с други райони

Покажи

Период

* Средните цени са определени чрез медианна стойност