Обяви За нас Контакти
Продава 3-СТАЕН
град Пловдив, Гагарин
161 500 €
315 866.55 лв.

(1 335 €, 2 611.03 лв./m2)
Цената е с включено ДДС
История на цената
Публикувана в 15:37 на 3 ноември, 2025 год.
Обявата е посетена 27 пъти.
Площ:
121 m2
Етаж:
9-ти от 12
Строителство:
Тухла, 2027 г.

Описание на имота:


БИЛДИНГ БОКС предлага за продажба тристаен апартамент в напреднал етап на строителство в кв. Гагарин.

Предимства на имота:
- ЛОКАЦИЯ: Комплексът е разположен в квартал Гагарин, в близост до основни пътни артерии, детски градини, училища и паркове, както и на 10 минути пешеходно разстояние от центъра на гр. Пловдив.
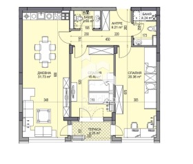
- РАЗПРЕДЕЛЕНИЕ: Просторна всекидневна с кухненски бокс, с площ от 31,73 кв.м, две спални, антре, две бани с тоалетни и две тераси.
- ПЛОЩ: Апартаментът е с обща площ от 121,47 кв.м.
- ОТОПЛЕНИЕ: Електричество.
- ИЗЛОЖЕНИЕ: ЮГ.
- ЕТАЖ: 9-ти етаж от общо 12.
- ПАРКИРАНЕ: Наличен подземен и надземен паркинг с възможност за закупуване на паркоместа и гаражи.
- СГРАДА: Модерна сграда, проектирана от инвеститор с опит и история в гр. Пловдив.
- ЕТАП НА СТРОИТЕЛСТВО: Строителството е стартирало през м. Юни 2024г. Въвеждане в експлоатация се очаква в началото на 2027г.

БИЛДИНГ БОКС предоставя безплатна консултация и съдействие при финансиране на избрания от Вас имот.
Оферта 21711
Виж всички обяви в buildingbox.bazar.bg или тук
Особености
Тухла
Асансьор
В затворен комплекс
Контрол на достъпа
С гараж
С паркинг
За контакт:
0879900984
Брокер:
БИЛДИНГ БОКС Пловдив Запад
0879 900 984
Офис: гр. Пловдив
Още оферти от брокера: Продава | Дава под наем | Купува | Наема
Агенция:
БИЛДИНГ БОКС
0877734412
БИЛДИНГ БОКС logo
Медал за прослужено време
В imot.bg от 2013 г.
buildingbox.imot.bg
Адрес:
област София, гр. София, София ЕИК207674103
ИЗПРАТИ ЗАПИТВАНЕ
ИЗПРАТИ ЗАПИТВАНЕТО

Продава 3-СТАЕН
град Пловдив, Гагарин
Обява: 1c176217707809227

161 500 €
315 866.55 лв.
История на цената
(1 335 €, 2 611.03 лв./m2)

Цената е с включено ДДС
ЗАПАЗИ ОБЯВАТА

Местоположение: град Пловдив, Гагарин

Допълнителни данни за имотите в района и сравнение с други райони: Търсене в АРХИВ 2013 - 2025 г.











Добави/редактирай
вид имот и район
*Средните цени са определени чрез медиана стойност.