Обяви За нас Контакти
Продава 3-СТАЕН
град Варна, Възраждане 4
185 000 €
361 828.55 лв.

(1 402 €, 2 742.07 лв./m2)
Цената е с включено ДДС
История на цената
Коригирана в 9:59 на 27 октомври, 2025 год.
Обявата е посетена 79 пъти.
Площ:
132 m2
Етаж:
9-ти от 13
Строителство:
Тухла, 2028 г.

Описание на имота:


БИЛДИНГ БОКС предлага за продажба ТРИСТАЕН апартамент в новострояща се сграда до парк Възраждане

-ЛОКАЦИЯ: Локацията позволява удобство на живущите, възможност за отдаване под наем, благодарение на близостта до главни пътни артерии и големи вериги на хранителни магазини, учебни заведения, спирки на градски транспорт и други удобства. Сградата ще се намира на крачки от новоизградения парк 'Възраждане'.

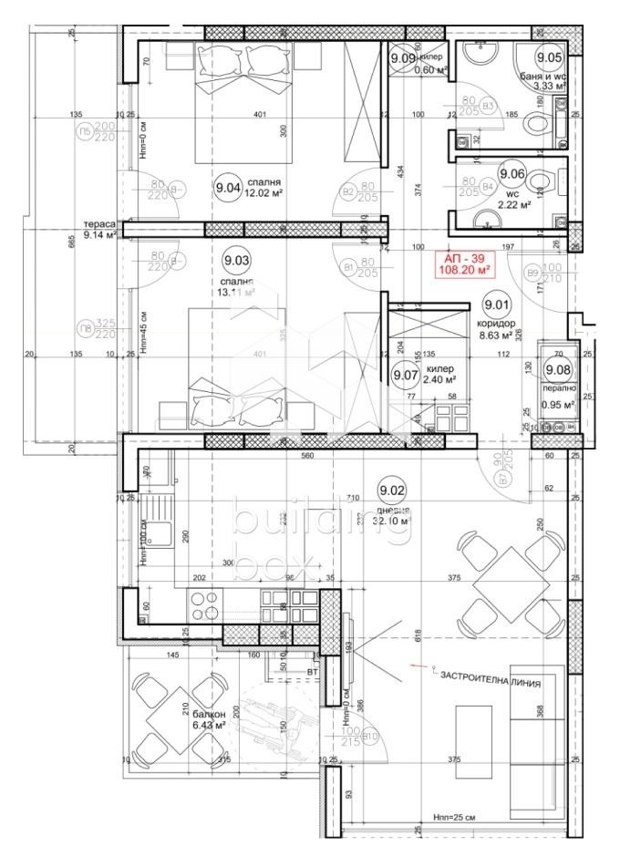
-РАЗПРЕДЕЛЕНИЕ: Апартаментът се състои от всекидневна с кухненски бокс - 32.10 кв.м., две спални по - 13.11 кв.м., 12.02 кв.м., баня с тоалетна - 3.33 кв.м., тоалетна - 2.22 кв.м., килер, перално помещение, тераса, балкон, коридор.

-ЕТАЖНОСТ: Етаж 9 от общо 13

-ОТОПЛЕНИЕ: Електричество

-ИЗЛОЖЕНИЕ: Югозапад

-СТРОИТЕЛСТВО: Тухла

-ПАРКИРАНЕ : Към имота има възможност да се закупи паркомясто;

-СГРАДА: Сградата е с разрешение за строеж. Очаква се Акт 16 - 2028 година

-ИНВЕСТИТОР: Инвеститорът е показал история на вече завършените имоти, които могат да бъдат разгледани като начин на изпълнение, качество, външен вид и стил.

Билдинг Бокс предлага безплатна консултация и съдействие при финансиране на избрания от Вас имот

Оферта 25417
Виж всички обяви в buildingbox.bazar.bg или тук
Особености
Тухла
За контакт:
0879900993
Брокер:
БИЛДИНГ БОКС Варна
0879900993
Още оферти от брокера: Продава | Дава под наем | Купува | Наема
Агенция:
БИЛДИНГ БОКС
0877734412
БИЛДИНГ БОКС logo
Медал за прослужено време
В imot.bg от 2013 г.
buildingbox.imot.bg
Адрес:
област София, гр. София, София ЕИК207674103
ИЗПРАТИ ЗАПИТВАНЕ
ИЗПРАТИ ЗАПИТВАНЕТО

Продава 3-СТАЕН
град Варна, Възраждане 4
Обява: 1c175869741000586

185 000 €
361 828.55 лв.
История на цената
(1 402 €, 2 742.07 лв./m2)

Цената е с включено ДДС
ЗАПАЗИ ОБЯВАТА

Местоположение: град Варна, Възраждане 4

Допълнителни данни за имотите в района и сравнение с други райони: Търсене в АРХИВ 2013 - 2025 г.











Добави/редактирай
вид имот и район
*Средните цени са определени чрез медиана стойност.