Обяви За нас Контакти
Продава 2-СТАЕН
град Пловдив, Гагарин
87 914 €
171 944.84 лв.

(1 312 €, 2 566.05 лв./m2)
Цената е с включено ДДС
История на цената
Публикувана в 20:55 на 30 март, 2026 год.
Обявата е посетена 29 пъти.
Площ:
67 m2
Етаж:
4-ти от 15
Строителство:
Тухла, Ще бъде въведен в експлоатация 2027 г.

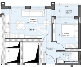
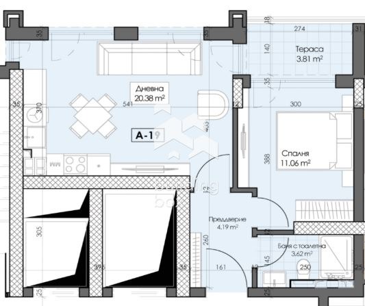
Описание на имота:


БИЛДИНГ БОКС предлага за продажба двустаен апартамент в новострояща се сграда в кв. Гагарин .
Предимства на имота:
ЛОКАЦИЯ: Сградата се намира на главен булевард в квартал Гагарин , с лесен достъп до центъра на гр. Пловдив.
РАЗПРЕДЕЛЕНИЕ: Просторна всекидневна с кухненски бокс, спалня, антре, баня с тоалетна и склад, който е включен в цената.
ЕТАЖНОСТ: 7-ми етаж от общо 15. Първите три етажа са търговски помещения и офиси.
ОТОПЛЕНИЕ: Електричество.
ИЗЛОЖЕНИЕ: Север.
ПАРКИРАНЕ: Възможност за закупуване на гараж или паркомясто от инвеститора.
СГРАДА: Апартаментът се намира в новострояща се сграда от инвеститор с дългогодишна история и опит. В комплекса ще има търговски помещения, офиси и вътрешен двор за удобство на живущите.
ЕТАП НА СТРОИТЕЛСТВО: Акт 16 се очаква в края на 2027 г.

БИЛДИНГ БОКС предоставя безплатна консултация и съдействие при финансиране на избрания от Вас имот.
Оферта 31013
Особености
Тухла
За контакт:
0877190777
Брокер:
БИЛДИНГ БОКС Пловдив
0877190777
Офис: гр. Пловдив
Още оферти от брокера: Продава | Дава под наем | Купува | Наема
Агенция:
БИЛДИНГ БОКС
0877734412
БИЛДИНГ БОКС logo
Медал за прослужено време
В imot.bg от 2013 г.
buildingbox.imot.bg
Адрес:
област София, гр. София, София ЕИК207674103
ИЗПРАТИ ЗАПИТВАНЕ
ИЗПРАТИ ЗАПИТВАНЕТО

Продава 2-СТАЕН
град Пловдив, Гагарин
Обява: 1b177489335939404

87 914 €
171 944.84 лв.
История на цената
(1 312 €, 2 566.05 лв./m2)

Цената е с включено ДДС
ЗАПАЗИ ОБЯВАТА

Местоположение: град Пловдив, Гагарин

Допълнителни данни за имотите в района и сравнение с други райони

Покажи

Период

и 3 месеца

* Средните цени са определени чрез медианна стойност