Обяви За нас Контакти
Продава 2-СТАЕН
град Пловдив, Тракия
90 650 €
177 295.99 лв.

(1 242 €, 2 429.14 лв./m2)
Цената е с включено ДДС
История на цената
Публикувана в 17:22 на 11 февруари, 2026 год.
Обявата е посетена 229 пъти.
Площ:
73 m2
Етаж:
7-ми от 10
ТEЦ:
НЕ
Строителство:
Тухла, 2027 г.

Описание на имота:


БИЛДИНГ БОКС предлага за продажба двустаен апартамент в сграда Тракия Грийн Парк , в кв. Тракия .

Предимства на имота:
ЛОКАЦИЯ: В края на кв. Тракия , в близост до метро, Мол Плаза, парк Лаута и Кауфланд .
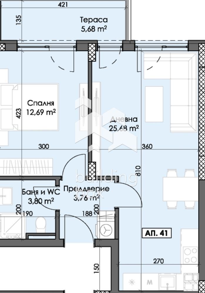
РАЗПРЕДЕЛЕНИЕ: Просторна всекидневна с кухненски бокс 25,68 кв.м, спалня 12,69 кв.м, антре 3,76 кв.м, баня с тоалетна 3,80 кв.м и тераса 5,68 кв.м.
ЕТАЖНОСТ: 7-ми етаж от общо 10.
ОТОПЛЕНИЕ: Електричество.
ИЗЛОЖЕНИЕ: Запад.
СГРАДА: Апартаментът се намира в нова сграда от инвеститор с дългогодишна история и опит.
ЕТАП НА СТРОИТЕЛСТВО: Преди Акт 14. Въвеждането в експлоатация (Акт 16) се очаква в края на 2027 г.
ОСОБЕНОСТИ: Има възможност за обединяване на съседни апартаменти два двустайни.

БИЛДИНГ БОКС предоставя безплатна консултация и съдействие при финансиране на избрания от Вас имот.
Оферта 27996
Особености
Тухла
За контакт:
0877190777
Брокер:
БИЛДИНГ БОКС Пловдив
0877190777
Офис: гр. Пловдив
Още оферти от брокера: Продава | Дава под наем | Купува | Наема
Агенция:
БИЛДИНГ БОКС
0877734412
БИЛДИНГ БОКС logo
Медал за прослужено време
В imot.bg от 2013 г.
buildingbox.imot.bg
Адрес:
област София, гр. София, София ЕИК207674103
ИЗПРАТИ ЗАПИТВАНЕ
ИЗПРАТИ ЗАПИТВАНЕТО

Продава 2-СТАЕН
град Пловдив, Тракия
Обява: 1b177082332787057

90 650 €
177 295.99 лв.
История на цената
(1 242 €, 2 429.14 лв./m2)

Цената е с включено ДДС
ЗАПАЗИ ОБЯВАТА

Местоположение: град Пловдив, Тракия

Допълнителни данни за имотите в района и сравнение с други райони

Покажи

Период

и 3 месеца

* Средните цени са определени чрез медианна стойност