Обяви За нас Контакти
Продава 2-СТАЕН
град Варна, Владислав Варненчик 1
84 000 €
164 289.72 лв.

(1 292 €, 2 526.93 лв./m2)
Цената е с включено ДДС
История на цената
Публикувана в 14:49 на 20 януари, 2026 год.
Обявата е посетена 19 пъти.
Площ:
65 m2
Етаж:
5-ти от 5
Строителство:
Тухла, 2028 г.

Описание на имота:


БИЛДИНГ БОКС предлага за продажба двустаен апартамент в новострояща се жилищна сграда.

ЛОКАЦИЯ: Жилищната сграда се намира в кв. Владиславово. Локация с бърз достъп до главен булевард, спирки на градски транспорт, търговски обекти, медицински центрове.
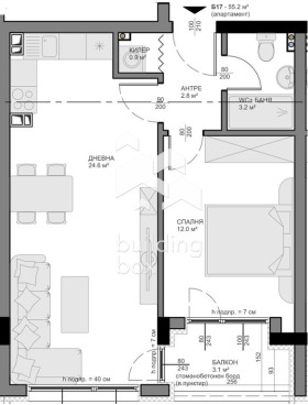
РАЗПРЕДЕЛЕНИЕ: Всекидневна с кухненски бокс с площ от 24.60 кв.м., спалня - 12.00 кв.м., антре, баня и тоалетна, килер, балкон.
ЕТАЖНОСТ: Етаж 5 от 5
ИЗЛОЖЕНИЕ: Изток
ОТОПЛЕНИЕ: Електричество
ПАРКИРАНЕ: Налични подземни паркоместа, гаражи, както и външни паркоместа, които могат да бъдат закупени допълнително.
ЕТАП НА СТРОИТЕЛСТВО: С разрешение за строеж, открита строителна площадка
СГРАДА: Сградата е проектирана на 5 жилищни етажа, с общо 42 апартамента и 2 офиса. Апартаментите разполагат с функционални разпределения.

ИНВЕСТИТОР: Инвеститор с дългогодишен опит и утвърден в сферата на жилищно и промишлено строителство, както и в ремонти на сгради и съоръжения.

Билдинг Бокс предоставя безплатна консултация и съдействие при финансиране на избрания от Вас имот.

Оферта 27450
Особености
Тухла
За контакт:
0879900993
Брокер:
БИЛДИНГ БОКС Варна
0879900993
Още оферти от брокера: Продава | Дава под наем | Купува | Наема
Агенция:
БИЛДИНГ БОКС
0877734412
БИЛДИНГ БОКС logo
Медал за прослужено време
В imot.bg от 2013 г.
buildingbox.imot.bg
Адрес:
област София, гр. София, София ЕИК207674103
ИЗПРАТИ ЗАПИТВАНЕ
ИЗПРАТИ ЗАПИТВАНЕТО

Продава 2-СТАЕН
град Варна, Владислав Варненчик 1
Обява: 1b176891334052379

84 000 €
164 289.72 лв.
История на цената
(1 292 €, 2 526.93 лв./m2)

Цената е с включено ДДС
ЗАПАЗИ ОБЯВАТА

Местоположение: град Варна, Владислав Варненчик 1

Допълнителни данни за имотите в района и сравнение с други райони

Покажи

Период

и 1 месец

* Средните цени са определени чрез медианна стойност