Обяви За нас Контакти
Продава 2-СТАЕН
град Варна, Възраждане 4
126 000 €
246 434.58 лв.

(1 658 €, 3 242.77 лв./m2)
Цената е с включено ДДС
История на цената
Публикувана в 14:17 на 20 януари, 2026 год.
Обявата е посетена 11 пъти.
Площ:
76 m2
Етаж:
4-ти от 13
Строителство:
Тухла, 2028 г.

Описание на имота:


БИЛДИНГ БОКС предлага за продажба ДВУСТАЕН апартамент в новострояща се сграда до парк Възраждане
-ЛОКАЦИЯТА: Локацията позволява удобства на живущите, възможност за отдаване под наем, благодарение на близостта до главните пътни артерии и големи вериги на хранителни магазини, учебни заведения, спирки на градски транспорт и други удобства. Сградата ще се намира на крачки от новоизградения парк 'Възраждане'.
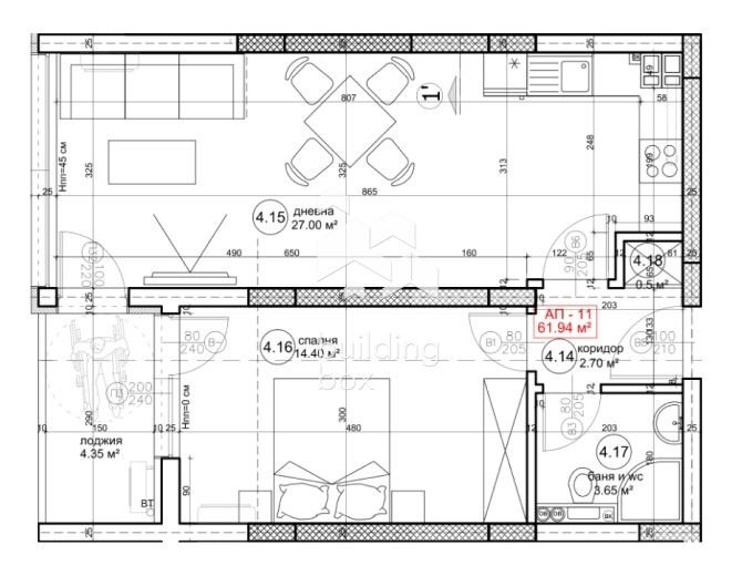
-РАЗПРЕДЕЛЕНИЕ: Апартаментът се състои от всекидневна с кухненски бокс - 27.00 кв.м., спалня 14.40 кв.м., лоджия, баня с тоалетна,перално помещение, коридор.
-ЕТАЖНОСТ: Етаж 4 от общо 13
-ОТОПЛЕНИЕ: Електричество
-ИЗЛОЖЕНИЕ: Запад
-СТРОИТЕЛСТВО: Тухла
-ПАРКИРАНЕ : Към имота има възможност да се закупи паркомясто;
-СГРАДА: Сградата е с разрешение за строеж. Очаква се Акт 16 - 2028 година
-ИНВЕСТИТОР: Инвеститорът е показал история на вече завършени имоти, които могат да бъдат разгледани като начин на изпълнение, качество, външен вид и стил.

Билдинг Бокс предлага безплатна консултация и съдействие при финансиране на избрания от Вас имот

Оферта 25456
Особености
Тухла
За контакт:
0879900993
Брокер:
БИЛДИНГ БОКС Варна
0879900993
Още оферти от брокера: Продава | Дава под наем | Купува | Наема
Агенция:
БИЛДИНГ БОКС
0877734412
БИЛДИНГ БОКС logo
Медал за прослужено време
В imot.bg от 2013 г.
buildingbox.imot.bg
Адрес:
област София, гр. София, София ЕИК207674103
ИЗПРАТИ ЗАПИТВАНЕ
ИЗПРАТИ ЗАПИТВАНЕТО

Продава 2-СТАЕН
град Варна, Възраждане 4
Обява: 1b176891146712191

126 000 €
246 434.58 лв.
История на цената
(1 658 €, 3 242.77 лв./m2)

Цената е с включено ДДС
ЗАПАЗИ ОБЯВАТА

Местоположение: град Варна, Възраждане 4

Допълнителни данни за имотите в района и сравнение с други райони

Покажи

Период

и 1 месец

* Средните цени са определени чрез медианна стойност