Обяви За нас Контакти
Продава 2-СТАЕН
град Пловдив, Гагарин
119 200 €
233 134.94 лв.

(1 548 €, 3 027.62 лв./m2)
Цената е с включено ДДС
История на цената
Публикувана в 12:33 на 2 декември, 2025 год.
Обявата е посетена 16 пъти.
Площ:
77 m2
Етаж:
5-ти от 11
Строителство:
Тухла, 2026 г.

Описание на имота:


БИЛДИНГ БОКС предлага за продажба двустаен апартамент в напреднал етап на строителство в кв. Гагарин.

Предимства на имота:
- ЛОКАЦИЯ: Комплексът е разположен в квартал Гагарин, в близост до основни пътни артерии, детски градини, училища и паркове, както и на 10 минути пешеходно разстояние от центъра на гр. Пловдив.
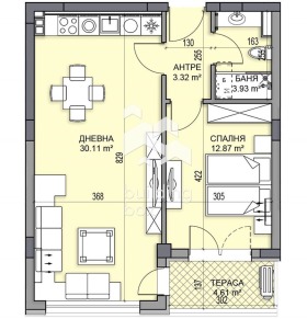
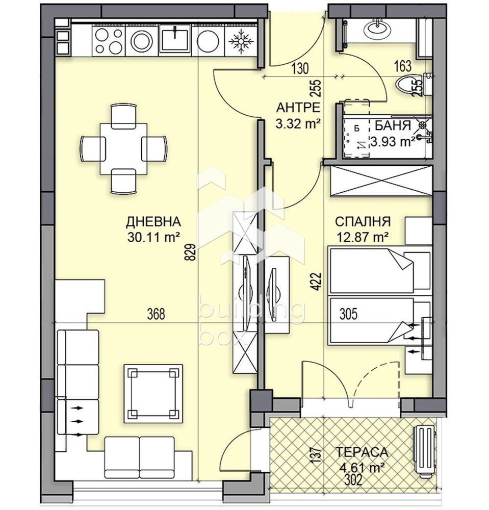
- РАЗПРЕДЕЛЕНИЕ: Просторна всекидневна с кухненски бокс, с площ от 30 кв.м, спалня, антре, баня с тоалетна и тераса.
- ПЛОЩ: Апартаментът е с обща площ от 77,43 кв.м.
- ОТОПЛЕНИЕ: Електричество.
- ИЗЛОЖЕНИЕ: ЮГ.
- ЕТАЖ: 5-ти етаж от общо 11.
- ПАРКИРАНЕ: Наличен подземен и надземен паркинг с възможност за закупуване на паркоместа и гаражи.
- СГРАДА: Модерна сграда, проектирана от инвеститор с опит и история в гр. Пловдив.
- ЕТАП НА СТРОИТЕЛСТВО: Строителството е стартирало през м. Юни 2024г. Въвеждане в експлоатация се очаква до края на 2026г.

БИЛДИНГ БОКС предоставя безплатна консултация и съдействие при финансиране на избрания от Вас имот.
Оферта 15516
Виж всички обяви в buildingbox.bazar.bg или тук
Особености
Тухла
Асансьор
В затворен комплекс
Контрол на достъпа
С гараж
С паркинг
За контакт:
0879900984
Брокер:
БИЛДИНГ БОКС Пловдив Запад
0879 900 984
Офис: гр. Пловдив
Още оферти от брокера: Продава | Дава под наем | Купува | Наема
Агенция:
БИЛДИНГ БОКС
0877734412
БИЛДИНГ БОКС logo
Медал за прослужено време
В imot.bg от 2013 г.
buildingbox.imot.bg
Адрес:
област София, гр. София, София ЕИК207674103
ИЗПРАТИ ЗАПИТВАНЕ
ИЗПРАТИ ЗАПИТВАНЕТО

Продава 2-СТАЕН
град Пловдив, Гагарин
Обява: 1b176467162461825

119 200 €
233 134.94 лв.
История на цената
(1 548 €, 3 027.62 лв./m2)

Цената е с включено ДДС
ЗАПАЗИ ОБЯВАТА

Местоположение: град Пловдив, Гагарин