Обяви За нас Контакти
Продава 2-СТАЕН
град София, Люлин 5
124 046 €
242 612.89 лв.

(1 551 €, 3 033.49 лв./m2)
Цената е с включено ДДС
История на цената
Публикувана в 18:13 на 24 ноември, 2025 год.
Обявата е посетена 16 пъти.
Площ:
80 m2
Етаж:
2-ри от 7
ТEЦ:
ДА
Строителство:
Тухла, 2027 г.

Описание на имота:


БИЛДИНГ БОКС представя сграда, която се отличава с просторни жилища с перфектно разпределение, нисък процент общи части и високо качество на строителството, изпълнено от опитни професионалисти, които осигуряват сигурност и комфорт за бъдещите обитатели.

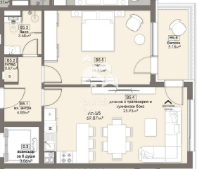
Имотът е със застроена площ от 69.87 кв.м., а разпределението му е както следва: входно антре, дневна с кухненски бокс, спалня, склад, баня с тоалетна и тераса. Изложението на имота е изток. Намира се на 2-ри етаж от общо 7 етажа. Отоплението е на ТЕЦ, ще има изводи за климатици и бойлер.

Жилищният комплекс е изпъкващ сред сградите в района с иновативен дизайн, модерна фасада и перфектни архитектурни решения. Ще предостави комфорт за бъдещите си собственици и всички необходими удобства за днешния градски живот. При изграждането на проекта ще бъдат използвани висококачествени материали и технологии.

Сградата е след АКТ 14 и ще бъде завършена 2027г.

Местоположението на сградата е в непосредствена близост до спирки на градски транспорт, магазини и супермаркети, детски градини, училища, много зелени междублокови пространства и 'Западния парк'. Локацията има бърз излаз до Околовръстния път.

БИЛДИНГ БОКС предлага безплатна консултация и кредитно съдействие за финансиране на покупката на Вашия имот.
Оферта 18573
Виж всички обяви в buildingbox.bazar.bg или тук
Особености
Тухла
За контакт:
0877734412
Брокер:
БИЛДИНГ БОКС София
0877734412
Офис: гр. София, ул. Цар Симеон 154
Още оферти от брокера: Продава | Дава под наем | Купува | Наема
Агенция:
БИЛДИНГ БОКС
0877734412
БИЛДИНГ БОКС logo
Медал за прослужено време
В imot.bg от 2013 г.
buildingbox.imot.bg
Адрес:
област София, гр. София, София ЕИК207674103
ИЗПРАТИ ЗАПИТВАНЕ
ИЗПРАТИ ЗАПИТВАНЕТО

Продава 2-СТАЕН
град София, Люлин 5
Обява: 1b176400081584234

124 046 €
242 612.89 лв.
История на цената
(1 551 €, 3 033.49 лв./m2)

Цената е с включено ДДС
ЗАПАЗИ ОБЯВАТА

Местоположение: град София, Люлин 5