Обяви За нас Контакти
Продава 2-СТАЕН
град София, Овча купел 1
132 000 €
258 169.56 лв.

(2 200 €, 4 302.83 лв./m2)
Цената е с включено ДДС
История на цената
Публикувана в 16:58 на 24 ноември, 2025 год.
Обявата е посетена 33 пъти.
Площ:
60 m2
Етаж:
2-ри от 6
Газ:
ДА
Строителство:
Тухла, 2026 г.

Описание на имота:


БИЛДИНГ БОКС предлага за продажба двустаен апартамент в кв. 'Овча Купел 1'.

Имотът се намира на ключова локация за района - 5 минути от метростанция, 15 минути от 'НБУ', бъдещ парк ще се изгради на близо и множество аптеки и супермаркети.

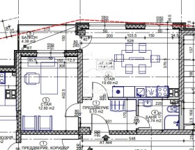
Жилището е със застроена площ от 52.83 кв.м. и е със следното разпределение:
- Просторна дневна с кухненски бокс;
- Голяма спалня;
- Бяна с тоалетна;
- Тераса;
- Предверие

Апартаментът е със североизточно изложение, което осигурява много естествена светлина следобед и вечер. Намира се на 1-яи жилищен етаж (втори над офиси) от общо 7 .Отоплението е предвидено на газ.
Имотът е подходящ, както за живеене, така и за отдаване под наем с много добра възвращаемост.

Има възможност за закупуване на подземно паркомясто и мазе.

Очакван срок за завършване на сградата е м. Ноември 2026г., като етапът в момента е пред АКТ 14.

Използвани са висок клас материали за строителството, за добра топло и елетроефикастност.

БИЛДИНГ БОКС предоставя безплатна консултация и съдействие при финансиране на избрания от Вас имот.
Оферта 27056
Виж всички обяви в buildingbox.bazar.bg или тук
Особености
Тухла
За контакт:
0877734412
Брокер:
БИЛДИНГ БОКС София
0877734412
Офис: гр. София, ул. Цар Симеон 154
Още оферти от брокера: Продава | Дава под наем | Купува | Наема
Агенция:
БИЛДИНГ БОКС
0877734412
БИЛДИНГ БОКС logo
Медал за прослужено време
В imot.bg от 2013 г.
buildingbox.imot.bg
Адрес:
област София, гр. София, София ЕИК207674103
ИЗПРАТИ ЗАПИТВАНЕ
ИЗПРАТИ ЗАПИТВАНЕТО

Продава 2-СТАЕН
град София, Овча купел 1
Обява: 1b176399628734152

132 000 €
258 169.56 лв.
История на цената
(2 200 €, 4 302.83 лв./m2)

Цената е с включено ДДС
ЗАПАЗИ ОБЯВАТА

Местоположение: град София, Овча купел 1