Обяви За нас Контакти
Продава 2-СТАЕН
град Варна, Владислав Варненчик 1
87 300 €
170 743.96 лв.

(1 343 €, 2 626.68 лв./m2)
Цената е с включено ДДС
История на цената
Коригирана в 14:16 на 11 декември, 2025 год.
Обявата е посетена 89 пъти.
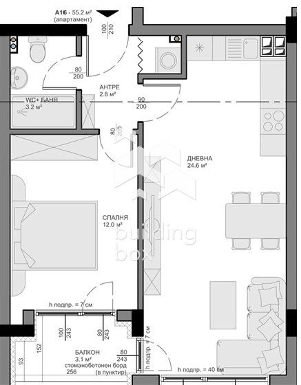
Площ:
65 m2
Етаж:
4-ти от 5
Строителство:
Тухла, 2028 г.

Описание на имота:


БИЛДИНГ БОКС предлага за продажба двустаен апартамент в новострояща се жилищна сграда.
ЛОКАЦИЯ: Жилищната сграда се намира в кв. Владиславово. Локация с бърз достъп до главен булевард, спирки на градски транспорт, търговски обекти, медицински центрове.
РАЗПРЕДЕЛЕНИЕ: Всекидневна с кухненски бокс с площ от 24.06 кв.м., спалня - 12.00 кв.м., антре, баня и тоалетна, перално помещение, балкон
ЕТАЖНОСТ: Етаж 4 от 5
ИЗЛОЖЕНИЕ: Юг/Изток
ОТОПЛЕНИЕ: Електричество
ПАРКИРАНЕ: Налични подземни паркоместа, гаражи, както и външни паркоместа, които могат да бъдат закупени допълнително.
ЕТАП НА СТРОИТЕЛСТВО: С разрешение за строеж, открита строителна площадка
СГРАДА: Сградата е проектирана на 5 жилищни етажа, с общо 42 апартамента и 2 офиса. Апартаментите разполагат с функционални разпределения.

ИНВЕСТИТОР: Инвеститор с дългогодишен опит и утвърден в сферата на жилищно, промишлено строителство, както и в ремонти на сгради и съоръжения.

Билдинг Бокс предоставя безплатна консултация и съдействие при финансиране на избрания от Вас имот.

Оферта 26816
Особености
Тухла
За контакт:
0879900993
Брокер:
БИЛДИНГ БОКС Варна
0879900993
Още оферти от брокера: Продава | Дава под наем | Купува | Наема
Агенция:
БИЛДИНГ БОКС
0877734412
БИЛДИНГ БОКС logo
Медал за прослужено време
В imot.bg от 2013 г.
buildingbox.imot.bg
Адрес:
област София, гр. София, София ЕИК207674103
ИЗПРАТИ ЗАПИТВАНЕ
ИЗПРАТИ ЗАПИТВАНЕТО

Продава 2-СТАЕН
град Варна, Владислав Варненчик 1
Обява: 1b176284733648032

87 300 €
170 743.96 лв.
История на цената
(1 343 €, 2 626.68 лв./m2)

Цената е с включено ДДС
ЗАПАЗИ ОБЯВАТА

Местоположение: град Варна, Владислав Варненчик 1

Допълнителни данни за имотите в района и сравнение с други райони

Покажи

Период

* Средните цени са определени чрез медианна стойност