Обяви За нас Контакти
Продава 2-СТАЕН
град София, Витоша
135 000 €
264 037.05 лв.

(2 813 €, 5 501.75 лв./m2)
Цената е с включено ДДС
История на цената
Публикувана в 10:11 на 7 ноември, 2025 год.
Обявата е посетена 101 пъти.
Площ:
48 m2
Етаж:
5-ти от 5
Газ:
ДА
Строителство:
Тухла, 2026 г.

Описание на имота:


Двустаен апартамент с гледка към 'Витоша' последен етаж, кв. 'Витоша', зад комплекс 'Макси'.

БИЛДИНГ БОКС предлага за продажба двустаен апартамент в сграда, разположена непосредствено зад комплекс Макси в кв. 'Витоша'. Сградата е в етап АКТ 14, а АКТ 16 (въвеждане в експлоатация), се очаква до м. Април 2026г.

За сградата:
Сградата ще бъде изпълнена с висококачествени материали минерална мазилка, 15 см топлоизолация, асансьори 'Orona'. Апартаментите ще се предават на шпакловка и замазка, с изводи на тапа.
В сградата се предлагат подземни паркоместа на цена от 30 000 евро.

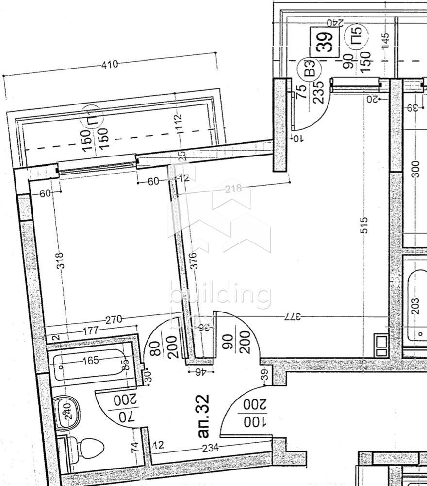
За имота (Ап. 32):
Апартаментът се намира на последния 5-ти етаж и е с 41,30 кв.м. светла площ и 48,48 кв.м. обща площ. Изложението е западно с панорамна гледка към 'Витоша'.
Състои се от входно антре, хол с кухня и трапезария, баня с тоалетна и две тераси една с излаз от дневната и една от спалнята.

БИЛДИНГ БОКС предоставя безплатна консултация и съдействие при финансиране на избрания от Вас имот.
Оферта 24443
Виж всички обяви в buildingbox.bazar.bg или тук
Особености
Тухла
Контрол на достъпа
За контакт:
0877734412
Брокер:
БИЛДИНГ БОКС София
0877734412
Офис: гр. София, ул. Цар Симеон 154
Още оферти от брокера: Продава | Дава под наем | Купува | Наема
Агенция:
БИЛДИНГ БОКС
0877734412
БИЛДИНГ БОКС logo
Медал за прослужено време
В imot.bg от 2013 г.
buildingbox.imot.bg
Адрес:
област София, гр. София, София ЕИК207674103
ИЗПРАТИ ЗАПИТВАНЕ
ИЗПРАТИ ЗАПИТВАНЕТО

Продава 2-СТАЕН
град София, Витоша
Обява: 1b176250307192259

135 000 €
264 037.05 лв.
История на цената
(2 813 €, 5 501.75 лв./m2)

Цената е с включено ДДС
ЗАПАЗИ ОБЯВАТА

Местоположение: град София, Витоша

Допълнителни данни за имотите в района и сравнение с други райони: Търсене в АРХИВ 2013 - 2025 г.











Добави/редактирай
вид имот и район
*Средните цени са определени чрез медиана стойност.