Обяви За нас Контакти
Продава 2-СТАЕН
град Варна, Изгрев
130 715 €
255 656.32 лв.

(2 042 €, 3 993.80 лв./m2)
Цената е с включено ДДС
История на цената
Коригирана в 16:53 на 24 октомври, 2025 год.
Обявата е посетена 26 пъти.
Площ:
64 m2
Етаж:
6-ти от 11
Строителство:
Тухла, 2026 г.

Описание на имота:




БИЛДИНГ БОКС продава двустаен апартамент в новострояща се сграда в близост до УМБАЛ Св.Марина.
Предимства на имота :
ЛОКАЦИЯ: Сградата е разположена на 350 метра от бул.Христо Смирненски, локация гарантираща комуникативност и спокойствие едновременно, далеч от шумните улици.
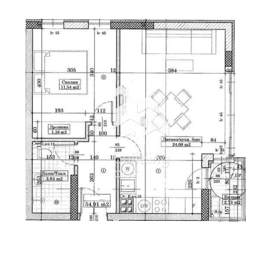
РАЗПРЕДЕЛЕНИЕ: Жилището се състои от дневна стая с кухненски бокс, спалня с дрешник, баня с тоалетна, входно антре и тераса.
ЕТАЖНОСТ: Жилището е ситуирано на етаж 6 от общо 11.
ОТОПЛЕНИЕ: Електричество
ИЗЛОЖЕНИЕ: Изток/Север
ПАРКИРАНЕ: На полуподземното ниво са планирани 22 паркоместа, а допълнително в сутерена има още 32 паркоместа.
СГРАДА: Сградата е удобно разположена, така че всички жилища да разполагат с достатъчно пространство и светлина. Проектирани са апартаменти с правилни форми и максимално функционално разпределение на помещенията. Предвижда се изчистена красива фасада изпълнена с висококачествени материали.
ЕТАП НА СТРОИТЕЛСТВО: Сградата е с Акт 14.
СТРОИТЕЛ: Изпълнител е строителна фирма с проекти с РЗП общо над 33 500 кв.м., доказана на строителния пазар с портфолио от над 15 обекта, които могат да бъдат разгледани по всяко време като стил, качество и начин на изпълнение.

Билдинг Бокс предоставя безплатна консултация и съдействие при финансиране на избрания от Вас имот.
Оферта 10154
Виж всички обяви в buildingbox.bazar.bg или тук
Особености
Тухла
За контакт:
0879900993
Брокер:
БИЛДИНГ БОКС Варна
0879900993
Още оферти от брокера: Продава | Дава под наем | Купува | Наема
Агенция:
БИЛДИНГ БОКС
0877734412
БИЛДИНГ БОКС logo
Медал за прослужено време
В imot.bg от 2013 г.
buildingbox.imot.bg
Адрес:
област София, гр. София, София ЕИК207674103
ИЗПРАТИ ЗАПИТВАНЕ
ИЗПРАТИ ЗАПИТВАНЕТО

Продава 2-СТАЕН
град Варна, Изгрев
Обява: 1b175742046080182

130 715 €
255 656.32 лв.
История на цената
(2 042 €, 3 993.80 лв./m2)

Цената е с включено ДДС
ЗАПАЗИ ОБЯВАТА

Местоположение: град Варна, Изгрев

Допълнителни данни за имотите в района и сравнение с други райони: Търсене в АРХИВ 2013 - 2025 г.











Добави/редактирай
вид имот и район
*Средните цени са определени чрез медиана стойност.