Обяви За нас Контакти
Продава 1-СТАЕН
град София, Слатина
115 500 €
225 898.37 лв.

(2 357 €, 4 609.89 лв./m2)
Цената е с включено ДДС
История на цената
Публикувана в 16:34 на 5 февруари, 2026 год.
Обявата е посетена 36 пъти.
Площ:
49 m2
Етаж:
1-ви от 6
ТEЦ:
ДА
Строителство:
Тухла, 2028 г.

Описание на имота:


БИЛДИНГ БОКС представя сграда, която се отличава с просторни жилища с перфектно разпределение и високо качество на строителството, изпълнено от опитни професионалисти, които осигуряват сигурност и комфорт за бъдещите обитатели.

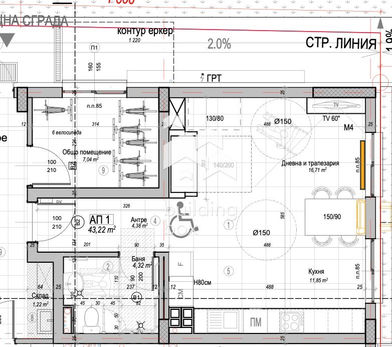
Имотът е едностаен и е със застроена площ от 43.22 кв.м. Има следното разпределение: входно антре, дневна с трапезария и баня с тоалетна.
Изложението на имота е изток.
Намира се на партерен етаж от общо 6. Отоплението е на ТЕЦ - ще има изводи за климатици с мултисплит, както и предвидено място за бойлер.

Жилищният комплекс е изпъкващ сред сградите в района с иновативен дизайн, модерна фасада и перфектни архитектурни решения. Ще предостави комфорт за бъдещите си собственици и всички необходими удобства за днешния градски живот. При изграждането на проекта ще бъдат използвани висококачествени материали и технологии.

Сградата е на втора плоча и ще бъде завършена м. Октомври 2028 г.

Местоположението на сградата е изключително удобно в непосредствена близост до спирки на градски транспорт, магазини и супермаркети, училища и детски градини. Районът е добре устроен с множество зелени междублокови пространства и поддържана среда за живеене. Локацията осигурява бърз достъп до основни булеварди като Шипченски проход и Цариградско шосе , което позволява лесно и удобно придвижване до всички части на града.

БИЛДИНГ БОКС предлага безплатна консултация и кредитно съдействие за финансиране на покупката на Вашия имот.
Оферта 27306
Особености
Тухла
За контакт:
0877734412
Брокер:
БИЛДИНГ БОКС София
0877734412
Офис: гр. София, ул. Цар Симеон 154
Още оферти от брокера: Продава | Дава под наем | Купува | Наема
Агенция:
БИЛДИНГ БОКС
0877734412
БИЛДИНГ БОКС logo
Медал за прослужено време
В imot.bg от 2013 г.
buildingbox.imot.bg
Адрес:
област София, гр. София, София ЕИК207674103
ИЗПРАТИ ЗАПИТВАНЕ
ИЗПРАТИ ЗАПИТВАНЕТО

Продава 1-СТАЕН
град София, Слатина
Обява: 1a177030204099848

115 500 €
225 898.37 лв.
История на цената
(2 357 €, 4 609.89 лв./m2)

Цената е с включено ДДС
ЗАПАЗИ ОБЯВАТА

Местоположение: град София, Слатина

Допълнителни данни за имотите в района и сравнение с други райони

Покажи

Период

и 2 месеца

* Средните цени са определени чрез медианна стойност